HOMAG PROFI BMG 311/33/V/K
Универсальный обрабатывающий центр портального исполнения с ЧПУ-управлением HOMAG PROFI BMG 311/33/V/K предназначен для выполнения различного вида фрезерования и сверления, обработки фанеры, МДФ, ДСП, массивной древесины и сходных материалов, в сочетании с оклеивающим агрегатом.
БАЗОВЫЙ СТАНОК
- станина станка стабильной стальной рамной конструкции
- серый структурный лак RDS 240 80 05
- система линейных направляющих с защитой от проникновения пыли
- приводы зубчатой рейкой для осей Х и Y
- шарико-винтовая пара для осей Z
- приводная техника Siemens с цифровым способом регулирования для высокой динамики и точности контура
- агрегатная стойка рассчитана на две отдельные оси Z (Z1, Z2), что делает возможным быстрое попеременное использование сверлильной головы и главного шпинделя
- диапазон перемещения оси Z = 450 мм позволяет использовать инструмент большой длины и обрабатывать заготовки большой толщины
- скорость перемещения:
- векторная скорость = 70 м/мин.
- ось Х = 35 м/мин.
- ось Y = 60 м/мин.
- ось Z = 25 м/мин.
- центральный аспирационный патрубок для подсоединения Заказчиком: Патрубок подключения к аспирации программно переключается пневмоцилиндрами к обрабатывающему агрегату, что гарантирует оптимальный процесс аспирации. Раздельная аспирация значительно уменьшает загрязнение пылью и опилками заготовок, станка и рабочего места, это обеспечивает минимизацию временных затрат на чистку станка и уборку помещения. Правильно организованная аспирация увеличивает срок службы инструмента и агрегатов.
- автоматическая централизованная система смазки всех приводов и линейных направляющих (оси X, Y, Z)
- подключение для пневматики R 3/4 дюйма, 7 бар
- потребляемая мощность для аспирации, пневматики, сжатого воздуха и питания приведены в отдельном установочном плане
- качество пола должно соответствовать фундаментному плану
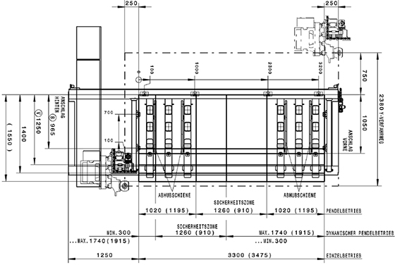
ПАРАМЕТРЫ ЗАГОТОВОК
- максимальная длина заготовки:
- все агрегаты: одно рабочее поле - 3 300 мм, маятниковый режим обработки - 1 740 мм
- фреза Ø 25 мм: одно рабочее поле - 3 475 мм, маятниковый режим обработки - 1 915 мм
- максимальная ширина заготовки:
- все агрегаты: передние упоры - 950 мм, задние упоры - 1 400 мм*
- фреза Ø 25 мм: передние упоры - 1 050 мм, задние упоры - 1 550 мм*
- оклеивающий агрегат powerEdge: передние упоры - 1 050 мм, задние упоры - 1 500 мм**
- толщина заготовки:
- максимум 250 мм, включая зажимные средства (можно проходить инструментом длиной 230 мм, включая крепление)
- макс. до 60 мм со стандартным зажимом без ограничения для агрегатов и аспирации
- указанные размеры заготовок нельзя сравнивать с максимально возможными размерами обработки каждого агрегата, для этого смотри отдельные таблицы
- мин. размеры заготовки зависят от зажимных устройств, поверхности заготовки и контура
- на технику работы при оклейке кромкой в решающей степени влияет кромочный материал
- параметры обработки зависят от кромки и клея
- за использование подходящих материалов (плит, клея, кромки, очистительных средств, лаков и т.д.) несет ответственность пользователь станка
* Ограничения для присадки см. схему расположения упорных пальцев
** для кромки из шпона максимум 1 350 мм
КОНСОЛЬНЫЙ СТОЛ

Зажимной стол с консолями и бесшланговой подачей вакуума для гибкого позиционирования любого количества вакуумных зажимов.
- 6 переставляемых в направлении оси Х консолей для заготовок, подходящих для вакуумных присосок позиционируемых бесшланговым способом. Позиции могут быть отображены графически в woodWOP или МСС
- 6 пневматически опускаемых продольных упоров, включая электронный опрос конечного положения (передний ряд упоров, см. план оснастки)
- 4 пневматически опускаемых продольных упора, включая электронный опрос конечного положения (задний ряд упоров, см. план оснастки)
- 4 регулируемых вспомогательных устройства позиционирования из пластика HPL для тяжелых заготовок, подъемная сила макс. 35 кг
- длина консоли: 1 340 мм
- упорные пальцы, выбираемые группами (программно), подъем: 140 мм
- 2 пневматически опускаемых боковых упора слева, включая электронный опрос конечного положения (см. план оснастки)
- 2 пневматически опускаемых боковых упора справа, включая электронный опрос конечного положения (см. план оснастки)
- 12 вакуумных присосок размером 160 × 115 × 100 мм (Д × Ш × В), свободно позиционируемых вручную бесшланговым способом
- 6 вакуумных присосок размером 125 × 75 × 100 мм, (Д × Ш × В), свободно позиционируемых вручную бесшланговым способом
- пневматические подключения для зажимных элементов - по 2 на место обработки
- подключения вакуума для шаблонов - по 2 на место обработки
- рабочая высота - 960 мм от нижней кромки заготовки
- линейные направляющие для точного и крутильно-жесткого перемещения зажимных консолей
- конструкция стола с большим пространством под консолями для доступа со всех сторон при удалении опилок и отходов
- упорные пальцы с контролем конечного положения для избегания столкновений во время обработки
- вакуумные зажимы высотой 100 мм для обработки нижней стороны заготовки
- запатентованное двойное уплотнение вакуумного зажима для постоянной передачи вакуума с консоли на вакуумные зажимы независимо от позиции или центровки вакуумных зажимов
- двойная укладка или маятниковая обработка для повышения производительности
- динамичная укладка деталей: позволяет оптимально использовать имеющиеся области обработки станка в маятников режиме. Станок автоматически проверяет по выполненной в программе укладке максимально возможные размеры детали. Консоли закреплены за полями обработки. Необходимая зона безопасности составляет 1260 мм. Благодаря динамичной укладке деталей на местах обработки можно создавать вариабельные ассиметричные поля для обработки в маятниковом режиме
- рабочее поле и позиция упорных пальцев в соответствии с планом оснастки
- заготовки с малой площадью опирания должны зажиматься шаблонами или механическими зажимами для заготовок
- нулевая точка станка - впереди слева
- заготовки укладываются вручную с передней стороны станка
СИСТЕМА УПРАВЛЕНИЯ POWER CONTROL PC 85T
Современная система управления базирующаяся на основе Windows PC.
ТЕХНИЧЕСКОЕ ОБЕСПЕЧЕНИЕ:
- SPS-управление по международной норме IEC 61131
- современный промышленный ПК с операционной операционной системой Windows XP и процессором Intel
- плоский цветной ЖК монитор 17 дюймов
- клавиатура и мышка
- 1 стационарный жесткий диск
- 1 USB-флэшка для сохранения данных
- сохранение 1:1 (клонирование)
- USB-подключение
- ручное управление для наладочного режима
- цифровая техника привода
- децентрализованная цифровая система шин
- защита от вирусов
- подключение Ethernet через дополнительную карту и сетевое программное обеспечение. ХОМАГ внутри станка или линии применяет сети данных с кодированием 192.x.y.z. Если сеть Заказчика также применяет этот диапазон адресов, то выполняется специальное проектирование или Заказчик должен использовать дополнительное аппаратное обеспечение
- USV (бесперебойное энергоснабжение) защищает компьютер от повреждений при перебоях в сети, при перегрузке и коротком замыкании. При перебоях в сети ПК выключается через минуту, благодаря чему не происходит потери данных
ПРОГРАММНОЕ ОБЕСПЕЧЕНИЕ ДЛЯ СИСТЕМЫ POWER CONTROL 85:
Программное обеспечение РС85 - ядро РС85 с ЧПУ содержит:
- управление по путевым точкам всех осей параллельными процессами за счет многоканальной техники
- функцию Look-Ahead для обеспечения оптимальной скорости на переходах
- динамичное управление для точного ведения контура
Программный пакет РС85 с графическими программами обслуживания:
- WoodWOP для графического, ориентированного на диалог создания программ с ЧПУ. Большая библиотека программ с примерами для контуров, корпусной мебели, столешниц, дверей и т.д., включая постпроцессор
- графический банк данных инструментов: пакет программ для поддержки входящих в объем поставки агрегатов Homag. В пакет входят макросы обработки woodWOP, подпрограммы с ЧПУ и управление базой данных агрегатов
- управление производственными спецификациями
- обслуживание ЧПУ
- графическое отображение мест зажима заготовок
- текстовые сообщения об ошибках
- система диагностики woodScout (опция)
- MMR Basic для обслуживания в зависимости от наработки и для отображения важных производственных показателей (например, количества деталей, производственное время) с возможностью расширения до MMR Professional учета машинных данных
- woodWOP Wizard: для автоматической генерации процесса обработки облицовки детали кромкой по геометрии детали
![]() |
![]() |
![]() |
![]() |
| woodWOP | База данных инструмента | woodWOP Wizard |
Графическая оболочка |
Программное обеспечение для TeleServiceNet:
- дистанционная диагностика через Интернет
- взаиморасчеты по отдельному договору на дистанционную диагностику
- соединение с интернетом обеспечивает Заказчик
- доступ для РС 1 станка
- для станков, работающих в общезаводской сети, или станков в линии, требуется опция 8740
Электрооборудование
- рабочее напряжение 400 В, 50 Гц
- отдельно стоящий распределительный шкаф на роликах для установки справа или слева от обрабатывающего стола (стандарт - справа)
- интегрированный в шкаф терминал управления
- установка по Евронорме EN 60204
- защитный предохранитель только в сочетании с предохранителем, чувствительным к постоянному и переменному току
- предписанная температура окружающей среды: от + 10 до + 40 град
- влажность воздуха: 30 – 90 % (в случае более высокой влажности воздуха необходим обогрев распределительного шкафа, опция № 6173)
Устройства защиты и безопасности
- контроль безопасности с помощью чувствительных к давлению буферов выключения по норме EN1760-3 для эффективной защиты обслуживающего персонала
- защитное ограждение с одной стороны станка справа с дверцей
- доступность рабочих полей:
- на станке – два рабочих поля, выбираемые режимы свободного перемещения обеспечивают доступность отдельных рабочих полей
- для укладки и съема заготовок с максимально возможной длиной при работе в качестве отдельного станка их нужно выводить под защитное ограждение
- прочие необходимые устройства безопасности, например, вторая боковая стенка и задняя стенка, устанавливаются при необходимости (опция)
- внимание: без кругового ограждения станок не должен эксплуатироваться
- ЕС-соответствие (СЕ) по действующей Директиве по машиностроению для отдельных станков
- для работы станков в линии необходима дополнительная оценка на соответствие ЕС (на месте), которая выполняется либо самим Заказчиком, либо опционально поставщиком (опция Nr. 8945)
- тестирование на древесную пыль соответствует значению ПДК 2 мг/м³ при соблюдении мощности вытяжки согласно плану аспирации
- предпосылкой для нашей гарантии / ответственности за продукт является безусловное соблюдение поставляемой вместе со станком оригинальной инструкции по эксплуатации и предписаний по технике безопасности
Программирование по чертежу заказчика
- программирование и тестирование на 2 заготовках
- требования: выполненные в соответствие с требованиями ЧПУ чертежи, инструменты и образцы (кромка и плиты) предоставляются Заказчиком
- заготовка должна быть пригодной для обработки с зажимными устройствами
- тестирование дальнейших заготовок возможно опционально
ПАКЕТ КАЧЕСТВА HOMAG
- закрытые кабельные каналы по осям X, Y и Z
- линейные направляющие в направлении осей Х и Y поставляются с металлической защитной лентой
- TÜV-сертификат по DIN EN ISO 9001:2000
- энергосберегающие приводы согласно EU № 640/2009
- функция экономии электроэнергии - клавишу ECO Plus для включения спящего режима можно активизировать при последней обработке. После окончания программы за счет этого:
- приводы переходят в режим ожидания
- вакуумные насосы отключаются
- если станок простаивает, то рабочее напряжение отключается через заданное время
- если заготовка не зажата, то вакуумный насос отключается через заданное время
- егулировка клапанами для уменьшения необходимой энергии на аспирацию путем автоматического переключения между сверлильной головой и главным шпинделем
![]() |
![]() |
![]() |
Документация
Руководства по эксплуатации на русском языке, рекомендации по эксплуатации и техническому обслуживанию. Каталог и чертежи запчастей, пневмо- и электросхемы.
Оснащение
ОБРАБАТЫВАЮЩИЙ ШПИНДЕЛЬ 11 КВТ С ВЕКТОРНОЙ РЕГУЛИРОВКОЙ (Опция 7431)
- с интерфейсом для HSK F63 по DIN 69893
- для точного крепления инструментов и агрегатов для больших усилий обработки
- асинхронный двигатель переменного тока с векторной регулировкой, с датчиком обратной связи для высокого крутящего момента даже при малых оборотах, например, при применении шлифовальных агрегатов
- жидкостное охлаждение с контролем температуры во избежание термических повреждений и повышения срока службы
- шпиндель с гибридными подшипниками для высокой точности и долгого срока службы при высоком числе оборотов: 11 кВт при S6-режиме (циклическая отдача мощности в производственном режиме), 7,5 кВт при S1-режиме (непрерывное производство)
- преобразователь частоты для электронной регулировки числа оборотов от 0 до 18 000 об./мин.
- полный крутящий момент от 0 до 12 000 об./мин.
- полная номинальная мощность от 12 000 об./мин.
- вес инструмента макс. 5 кг, вкл. крепление
- длина инструмента макс. 200 мм от нижней кромки двигателя шпинделя
- диаметр инструмента: макс. 180 мм для фрезерных инструментов, макс. 200 мм для шлифовальных инструментов, включая модуль для оси Z
- датчик вибрации для контроля за шпинделем во время обработки: показывает вибрацию, возникающую из-за несбалансированности или ненадлежащего использования инструментов, при превышении порогового значения происходит останов станка с сообщением об ошибке
- автоматическое сокращение скорости подачи при падении числа оборотов шпинделя
- без крепления инструмента и без инструментов
- включая аспирационный кожух
ОСЬ C С АГРЕГАТНЫМ ИНТЕРФЕЙСОМ (Опция 7443)
- для подключения обрабатывающих агрегатов
- включая интерфейс для пневматики и привода поворотной оси С с передачей крутящего момента
- опора на 3 точки для надежной передачи усилия при высокой силе резания
- привод для всех агрегатов с поворотной осью
- диапазон поворота - без ограничений
- скорость вращения - до 50 об./мин.
- бесшланговая подача сжатого воздуха, например, для агрегатов с копиром
МАГАЗИН СМЕНЫ ИНСТРУМЕНТОВ НА 14 МЕСТ (Опция 7455)
- Для инструментов и агрегатов с креплением HSKF63
- Магазин тарельчатого типа на 14 мест для инструментов / агрегатов
- Макс. вес инструмента 6 кг вместе с креплением для агрегатов – макс. 10 кг
- Возможно следующее оснащение инструментами и агрегатами:
- 14 × диаметром макс. 130 мм или
- 7 × диаметром макс. 180 мм и 7 × диаметром макс. 70 мм
- Диаметр инструмента макс. 200 мм для шлифовальных агрегатов
- Вес оснастки макс. 70 кг
- С Drive5C+: пильный диск диаметром 350 мм и посадочным местом А=40 мм можно брать из магазина
- С Drive5C+: пильный диск диаметром 350 мм и посадочным местом А=50 мм можно брать из магазина
- Распределение веса между инструментами и агрегатами в магазине должно быть симметричным
СВЕРЛИЛЬНАЯ ГОЛОВА 16 ШПИНДЕЛЕЙ: V12 / H4 / S0/90° (Опция 7472)
1 двигатель 2,2 кВт с регулировкой частоты, число оборотов макс. 7500 об./мин.
12 ВЕРТИКАЛЬНЫХ ШПИНДЕЛЕЙ HIGH-SPEED:
- каждый сверлильный шпиндель с системой быстрой смены для сокращения времени на переналадку
- шпиндели вызываются по отдельности
- высота подъема шпинделей 60 мм
- сверлильные шпиндели в выдвинутом положении блокируются для надежного достижения глубины сверления
- расположение шпинделей L-образной формы
- 7 сверлильных шпинделей Х-направление
- 6 сверлильных шпинделей Y-направление
- расстояние между шпинделями: 32 мм
- диаметр сверла: макс. 35 мм
- общая длина сверла: 70 мм
- диаметр хвостовика: 10 мм
- с областью зажима и установочным винтом
- направление вращения: попеременно вправо, влево
4 ГОРИЗОНТАЛЬНЫХ ШПИНДЕЛЯ С ПИЛОЙ, 0/90 ГРАД:
- шпиндели поворачиваются на 0/90 град.
- высота подъема: 113,5 мм в направлении оси Z
- один сверлильный шпиндель усилен креплением для пазовальной пилы для выборки пазов в направлении осей X и Y
- расположение шпинделей - крестообразно
- 2 сверлильных шпинделя: Х-направление (+Х/-Y)
- 2 сверлильных шпинделя: Y-направление (+Y/-Х)
- диаметр сверла: макс. 10 мм
- крепление сверла: d = 10 мм
- общая длина сверла: 70 мм
- с областью зажима и установочным винтом
- макс. глубина сверления: 34 / 43 мм
- направление вращения: 3 × влево, 1 × вправо
- диаметр пильного диска: 125 мм
- ширина пильного диска: макс. 6 мм
- глубина пропила: макс. 28 мм
- фланец крепления: d = 30 мм
- диаметр делительной окружности: 48 мм LL
- винт с потайной головкой: 4 шт. M5
- направление вращения: левое вращение
- включая модуль Z-оси
- включая аспирационный кожух
- без инструментов
- 1 свободное место для монтажа фрезерного шпинделя
ПИЛЬНО-ТОРЦОВОЧНЫЙ АГРЕГАТ ДЛЯ МАГАЗИНА СМЕНЫ ИНСТРУМЕНТА (Опция 7511)
- для выборки пазов и резания сверху под любым углом к заготовке, а также для прямоугольных вырезов
- с постоянной смазкой для цикличного использования в главном шпинделе
- торцевание свесов кромочного материала и распил заготовки толщиной не более 50 мм
- число оборотов не более 9000 об./мин.
- крепёжный фланец диаметром 30 мм с 4 винтами с утапливаемой головкой М5
- диаметр делительной окружности 52 мм – LL
- включая делительную и торцовочную пилу диаметром 180 × 30 × 3,2, Z = 54
- толщина пильного диска макс. 10 мм для пазования
- макс. диаметр пильного диска 200 мм
- с возможностью неограниченного поворота через ось С
- сложные обработки должны проводиться при необходимости в несколько этапов
- макс. поперечное сечение резания ДСП: 120 мм² при 10 м/мин.
- макс. поперечное сечение резания массивной / твердой древесины: 70 мм² при 10 м/мин.
- только в сочетании с агрегатным интерфейсом и агрегатом главного шпинделя.
ОБДУВОЧНОЕ СОПЛО ДЛЯ КРОМКИ ЗАГОТОВКИ (Опция 7566)
- становлен на агрегатной стойке для главного шпинделя с пневматическим цилиндром
- для толщины заготовки макс. 60 мм
- применение обдувочного сопла без смены инструмента возможно при длине инструмента до 150 мм
- не в сочетании с системой щупов Senso-Flex (опция № 7444)
- в сочетании с Drive5+ (обдувочное сопло навешивается на стойку агрегата для сверлильной головы) появляется ограничение в 40 мм в Y-направлении (задняя кромка стола).
РАСШИРЕНИЕ ОСИ С ДЛЯ АГРЕГАТА FLEX-5 (Опция 7569)
- соединительный элемент для оси С
- для автоматической смены агрегата Flex-5
ПАКЕТ ДЛЯ ОКЛЕИВАЮЩЕЙ ЧАСТИ POWEREDGE С МЕСТОМ PICK-UP (Опция 7621)
Оклеивающий агрегат power Edge
- для приклеивания кромочного материала (прямоугольного поперечного сечения) на прямоугольные заготовки
- оклеивающая часть для оклеивания на 360° встык
- нанесение клея происходит на кромочный материал
- подача кромки в виде полосового материала вручную
- включая емкость для гранулята и подачу
- 1 напрессовывающий ролик Ø 50 мм для предварительного прессования
- 1 допрессовывающий ролик Ø 35 мм
- коротковолновый излучатель для подогрева толстых кромок
- применение и производительность управляются CNC-программой
- агрегат автоматически подается в главный шпиндель из места Pickup
- включая место Pickup, перемещающееся на суппорте оси Х
- высота вакуумных присосок: 100 мм
- толщина заготовки, включая контур зажимных средств: макс. 60 мм
- внутренний радиус при угле 90 град. (в зависимости от кромки): мин. 30 мм
- внешний радиус – в зависимости от гибкости кромочного материала
- кольцевой диаметр внутреннего контура: мин. 400 мм при толщине плиты 19 мм и тонкой кромке
- мин. внутренний контур увеличивается в зависимости от толщины плиты и толщины кромки
- высота кромки: макс. 65 мм
- толщина пластиковой кромки: 0,4 – 3 мм (зависит от материала, напр., ПВХ мин. 1 мм)
- толщина кромки из шпона: 0,4 – 2 мм
- обработка пластиковых кромок: макс. 135 мм², из шпона: макс. 90 мм²
- стык: прямая часть кромки детали: мин. 250 мм, радиус: мин. 300 мм
- стык в стык возможен только на пласти или на кривой, но не в углу
- сервисная система: откидываемая оклеивающая часть для более быстрого и простого сервиса
Станция предварительного торцевания на 1 рулон
- перемещается вместе с обрабатывающим порталом (ось Х)
- интегрирована в безопасный корпус
- обеспечивает доступность / подачу кромки с передней стороны станка
- для обработки рулонного материала
- роликовая тарелка с устройством разделения рулона
- диаметр бобины: макс. 780 мм
- длина кромки: мин. 350 мм
- высота кромки: макс. 65 мм
- мин. радиус бобины рулона с меламиновой кромкой: 150 мм
Комбинированный агрегат фрезерования заподлицо / циклёвки
- для автоматической замены в главный шпиндель
- одновременная обработка сверху/снизу
- сторона 1 предназначена для снятия свесов кромки заподлицо
- сторона 2 - для чистовой обработки кромки после чернового фрезерования
- ощупывание по пластям и торцам для выравнивания погрешностей заготовки и кромки
- мин. внешний радиус R=5 мм при угле 90° (в зависимости от кромки)
- мин. внутренний радиус R=30 мм при угле 90° (в зависимости от кромки)
- толщина кромки макс. 4 мм
- толщина заготовки: мин. 15 мм или 10 мм + 2 × R, макс. 60 мм
- мин. выступ заготовки ок. 25 мм
- число оборотов макс. 12 000 об./мин.
- неограниченный поворот через С-ось, тем самым постоянное напрессовочное давление под прямым углом к заготовке
- без инструментов
2 × РАДИУСНАЯ НОЖЕВАЯ ГОЛОВКА СО СМЕННЫМИ пластинами
- Z=3, включая 9 сменных пластин
- толщина кромки макс. радиус + 1 мм
- радиус R = 2 мм
2 × ПРОФИЛЬНЫЙ НОЖ ДЛЯ ЦИКЛИ
- радиус R = 2 mm
СВЕТОДИОДНЫЕ ИНДИКАТОРЫ ПОЗИЦИЙ НА КОНСОЛЯХ 1 300 – 1 600 ММ (Опция 7877)
- оптическая светодиодная система индикации для ручного позиционирования вакуумных присосок и консолей
- запрограммированные в woodWOP позиции консолей и присосок визуально указываются на столе в направлениях Х и Y светодиодными индикаторами с шагом в 5 мм
- благодаря промежуточным расстояниям можно достичь точность позиционирования +/- 2,5 мм
WOODWOP-ПАКЕТ: BAZ/BMG ( ЛИЦЕНЗИЯ НА ОДНО МЕСТО) (Опция 6633)
С помощью этого программного пакета можно создавать и графически симулировать программы для системы управления с ЧПУ.
Пакет включает следующие функции:
- woodWOP:
- удобная, управляемая через меню оболочка обслуживания
- изображение заготовки, обработок, консолей и зажимных элементов в 3D
- графическое изображение любых рабочих уровней
- создание контура по встроенной программе ведения контура
- ввод размеров по абсолютным значениям или по переменным
- интерактивное расположение присадки и ведение линий контура мышкой
- WoodWOP Wizard:
- для генерирования всех этапов обработки при нанесении клея на кромку на станке BAZ. По геометрии и кромлении заготовки программа woodWOP создается полностью в автоматическом режиме.
- включая автоматическое предложение по положению присосок в 3-х мерном изображении
- включая woodType для гравировки текстов
- включая проводник Mosaic для быстрого и простого управления собственными программами woodWOP
- Постпроцессор и редактор базы данных инструментов:
- создание программ по DIN 66025
- управление инструментами и базой данных инструментов
- простой ввод собственных профильных инструментов, включая генератор инструментов в 3D
- DFX-интерфейс: интерфейс для передачи графических данных из систем CAD в формате DXF для дальнейшей обработки. При этом должны соблюдаться определённые требования к чертежам, например, послойное отображение
- Системные требования:
- операционная система: Windows XP (SP2), Vista или Windows 7
- процессор: 2 GHz или выше; Intel, AMD или аналоги; рекомендуется Dual-Core Prozessor
- основное запоминающее устройство: 1GB RAM, рекомендуется 2GB RAM
- графическая карта: OpenGL 1.5 совместимая, мин. 128 МВ; рекомендуется OpenGL 2.x, 512MB, ATI Radeon, NVIDIA GeForce или аналогичная
- лицензия на одно рабочее место (последующие лицензии - опционально)
- виртуальный сервер и сервер терминала не поддерживаются
- после инсталляции продукт нужно активизировать на www.eparts.de
СИСТЕМА ДИАГНОСТИКИ WOODSCOUT (Опция 6383)
Пакет программ для графической диагностики состояния станка. Система WoodScout обеспечивает систематическое устранение неполадок и существенно повышает работоспособность оборудования.
- графическая SPS-диагностика на различных уровнях
- обучающая система благодаря возможности ввода и запоминания причин возникновения и способов устранения неполадок
- оптимальная поддержка для устранении простоев станка
КРЕПЛЕНИЕ ИНСТРУМЕНТА В КОМПЛЕКТЕ HSKF63 D=25 ММ (Опция 7901)
- крепление инструмента с полым хвостовым конусом HSK F63
- интегрированная зажимная цанга диаметром 25 мм для крепления инструмента с хвостовиком
- для инструментов с правым и левым вращением
ДОКУМЕНТАЦИЯ И ТЕКСТЫ УПРАВЛЕНИЯ НА РУССКОМ ЯЗЫКЕ (Опция 8336)
Переводятся:
- Руководство по эксплуатации, состоящее из инструкций по эксплуатации и техническому обслуживанию на бумажном носителе в формате А4 и на CD-ROM
- Тексты на экране для оператора только для PC22, 52 и 85
- Каталог запчастей на CD-ROM
Cрок поставки: после отгрузки станка.
Технические данные










