HOMAG модель Venture 20 M
Обрабатывающий центр с числовым программным управлением для выполнения операций фрезерования, сверления, облицовывания кромкой и последующей ее обработки для индивидуального производства мебельных деталей, обработки массивной древесины и аналогичных материалов.
ПАРАМЕТРЫ ЗАГОТОВОК:
| Venture 20M | для всех агрегатов, максимум | при фрезеровании инструментом диаметром 25 мм | ||
|---|---|---|---|---|
| Длина заготовки | При одиночной обработке | При 3-х; 4-х осевой обработке | 3050 мм | 3225 мм |
| При работе в маятниковом режиме | При 3-х; 4-х осевой обработке | 900 мм | 1075 мм | |
| Ширина заготовки | При установке по упорам передним | 1150 мм | 1220* мм | |
| При установке по упорам задним | 1400 мм | 1550(1475)** мм | ||
| Толщина заготовки | Включая специальные зажимные средства | 300 мм | Для трёхмерного фрезерования | |
| На стандартных зажимных средствах | 60 мм | Для всех видов агрегатов | ||
| Минимальные размеры заготовок зависят от зажимных устройств, формы и типа поверхности | ||||
* при толщине заготовки макс 40мм!
** при наклеивании кромки!
База станка
Станина станка в тяжелом стабильном исполнении из стальных рам с компактной системой линейных направляющих. Предварительно беззазорно напряженный привод с зубчатой рейкой и цифровыми серводвигателями переменного тока по осям X и Y.
- Максимальная скорость обработки составляет: 80м/мин по оси X и Y, 30 м/мин по оси Z
- Векторная скорость – 113 м/мин.
- агрегатные стойки рассчитаны на 2 отдельных Z-оси (Z1, Z2). Для быстрого попеременного применения сверлильной головки и главного шпинделя.
- путь перемещения оси Z - 800 мм, для применения большой длины инструмента и для заготовок большей высоты.
- ручная центральная смазка для всех приводов и линейных направляющих
- отдельный аспирационный колпак для шпинделя фрезы и сверлильный головки с центральными, аспирационными патрубками для соединения на месте
- пневмоподключение R1/2 дюйма, 7 бар
- значения подключения для аспирации, пневматики, сжатого воздуха и электричества – в отдельном установочном плане соотношения пола должны соответствовать плану фундамента
Система направляющих и техника привода
Привод зубчатой рейки по оси X, а также шариковинтовая пара по оси Y и Z производится по системе пылезащищённых линейных направляющих.
- привод зубчатой рейки по оси X, а также шарико-винтовая пара по оси Y и Z. производится по системе пылезащищённых линейных направляющих
- цифровая система привода в направлении осей X, Y, Z (Sercos)
- Скорость перемещения по осям:
- векторная скорость= 113м/мин
- X/Y = 80 м/мин
- Z = 30 м/мин
Техника привода состоит из:
- необслуживаемые моторы с оптическими датчиками высокого разрешения, гарантирующие высокую точность
- цифровые регуляторы привода повышенной надёжности
- оптоволоконные провода защищают от помех.
Консольный стол К
Зажимной стол с консолями и бесшланговой подачей вакуума для гибкого позиционирования любого количества вакуумных зажимов.
Консольный стол состоит из:
- консоли, включающие упор спереди – 6 шт.
- консоли, включающие упор сзади (фиксированный) – 4 шт.
- 4 гладкие шины для облегчения укладки заготовок
- длина консолей: 1340 мм
- упорные пальцы: 140 мм
- насаживаемые патроны: 2 шт. для заготовок со свесом облицовочного слоя
- Боковые упоры: слева (место 1) – 2 шт., справа (место 2) – 0 шт., справа (зеркальное место) - 2 шт.
- Вакуумные зажимы (160x115x100 мм) – 12 шт.
- Вакуумные зажимы (125x 75x100 мм) – 6 шт.
- пневматические подключения для зажимных элементов: по 2 на место обработки
- вакуумные подключения для шаблонов: по 2 на место обработки
- рабочая высота 950 мм от нижней кромки заготовки
- линейные направляющие для точного и крутильно-жесткого перемещения зажимных консолей
- настольная конструкция с большим пространством под консолями, обеспечивающим доступ со всех сторон, для удаления стружки и отходов
- упорные пальцы с контролем конечного положения во избежание столкновений во время обработки
- вакуумные зажимы 100 мм высотой для обработки нижней части заготовки
- запатентованное двойное уплотнение вакуумного зажима для постоянной передачи вакуума с консоли на вакуумные зажимы независимо от позиции или центровки вакуумных зажимов
- двойная укладка или маятниковая обработка для повышения производительности
- рабочее поле и позиция упорных пальцев согласно техническому листу данных
- заготовки с большими размерами должны зажиматься шаблонами или механическими зажимами для заготовок
- нулевая точка станка слева спереди
- заготовки укладываются вручную на переднюю сторону
- заготовки укладываются вручную на переднюю сторону
- Светодиодное позиционирование присосок.
Вариант оснащения: - Сверлильная группа: V17/Н4/S0/90°, Главный шпиндель-11 КВТ, ось С c креплением для агрегатов, Интерфейс для агрегатов Flex-5, Магазин для инструмента на 12 позиций.
Основной агрегат для сверления, фрезерования и пиления заготовки под любым углом.
Оснащение:
- устройство для крепления инструмента HSK F63 - DIN 69893.
- прецизионный зажим для высокопроизводительного инструмента
- асинхронный трехфазный двигатель с контролем силы тока и жидкостным охлаждением
- шпиндель с гибридным подшипником для обеспечения большой точности выполняемых операций и увеличения ресурса работы при большом количестве перенастроек.
- 11 кВт при переменной нагрузке
- 7,5 кВт при постоянной нагрузке
- система жидкостного охлаждения
- преобразователь частоты для электронной регулировки числа оборотов.
- число оборотов программируется бесступенчато в диапазоне 1000 - 24000 об/мин
- полная номинальная мощность от 10000 об/мин
- вес инструмента макс. 5 кг, вкл. крепление.
- длина инструмента макс. 200 мм от нижней кромки шпинделя двигателя.
- диаметр инструмента: макс. 180 мм для фрезерного инструмента, макс. 200 мм для применения пилы
- датчик вибрации для эксплуатационного надзора во время обработки: защищает шпиндель от повреждений из-за неправильного крепления и использования инструмента; в момент достижения критической отметки подается сигнал неисправности и двигатель останавливается.
- автоматическое снижение скорости подачи при снижении скорости вращения.
- без креплений инструмента и самих инструментов.
Для установки адаптерных агрегатов, включая пневматический стыковочный узел и плавный поворот в диапазоне 360 град. Передача крутящего момента с опорой по 3 точкам Редуктор: шестерня с косым зубом.
Интерфейс для агрегатов Flex-5. Агрегат Flex 5 позволяет вести обработку в оси А. Агрегат устанавливается опционально.
Для использования хвостового инструмента, автоматически заменяемого из механизма смены инструмента. Диапазон перемещения: см. прилагаемый план оснастки.
- 1 двигатель на 1,5 кВт с частотной регулировкой
- Макс 7500 об/мин
- 17 вертикальных шпинделей:
- независимый вызов сверлильных шпинделей
- ход 50 мм
- принудительное механическое фиксирование шпинделей в рабочей позиции для гарантированного достижения нужной глубины сверления.
- 11 шпинделей по оси Х
- 7 шпинделя по оси Y
- расстояние между шпинделями 32 мм
- диаметр сверления макс 35 мм
- макс глубина сверления 70 мм
- диаметр шпинделя 10 мм
- с установочной поверхностью и регулировочным винтом
- направление вращения: влево/вправо
- без инструмента
- 4 горизонтальных шпинделя:
- Поворачиваемые на 0/90°
- 2 шпинделя по оси Х
- 2 шпинделя по оси Y
- ход 100 мм
- макс глубина сверления 70 мм
- диаметр шпинделя 10 мм
- диаметр сверления макс 10 мм
- направление вращения: влево/вправо
- без инструмента
Автоматический магазин смены инструмента.
- для инструментов и агрегатов с креплением HSK F63
- вес инструментов макс.6 кг, вкл. крепление для агрегатов макс. 10кг
- возможны следующие оснащения инструментами и агрегатами: 12 x диаметр макс. 135 мм, 6 x диаметр макс. 180 мм, 6 x диаметр макс. 85 мм
- макс. диаметр шлифовального инструмента 200 мм
- ривод тарелки для инструмента с управляемой осью для более быстрой смены
Система управления
- система управления ЧПУ, вкл. приводные модули
- «умная» система управления, позволяющая в то время, когда ЧПУ управляет обработкой, на персональном компьютере независимо вводить новые данные
- персональный компьютер (РС): РС выполняет задачи управления оператора
- Intel Pentium
- операционная система Windows XP на английском языке.
- 17-дюймовый графический монитор (CRT)
- мин. 512 МБайт RAM
- мин. 40 ГБайт ёмкость жёсткого диска (разделён на различные локальные диски)
- дисковод 3,5 дюйма
- свободное штекерное подключение для сети (EtherNet) возможно в качестве опции. Дополнительные разъёмы PCI обеспечивают возможность установки других сетевых карт.
- серийный интерфейс для штрих-кода, модема или потолочного лазера.
- параллельный интерфейс для подключения принтера
- дисковод CD-RОМ, предназначенный для чтения и записи CD. (WEEKE не принимает на себя гарантии по защите от пыли)
- разъём USB.
Активация встроенной 10\100 Mbit сетевой карты и инсталляция прилагаемого программного обеспечения.
Программное обеспечение
WoodWOP представляет собой ориентированную на производство систему программирования (WOP) группы HOMAG.
Благодаря единому формату данных может производиться обмен программами обработки между различными станками с ЧПУ группы ХОМАГ.
Выдаёт информацию по интервалам обслуживания.
В пределах производственных спецификаций могут составляться и запоминаться технологические операции.
Активные позиции спецификаций могут обрабатываться последовательно или параллельно. До 10 переменных для использования соответствующих программ вариантов могут определяться дополнительно.
"Подвижный" план оснастки имитирует процесс обработки программы ЧПУ в определённой последовательности.
Возможно проконтролировать следующее:
- расчёт времени на обработку с точностью +/-10%
- контроль диапазона перемещения
- контроль возможности столкновения
- контроль позиций присосок
Имитирует все 3-осевые обработки. Поставка с защитой от копирования.
С помощью данного дополнения существует возможность смещения программы WoodWOP иначе, чем это стандартно предусмотрено для зеркального места.
Удаленное соединение
Подразумевается общая подготовка станка к проведению телесервиса, вкл. соответствующий модем, а также бесплатное предоставление услуг по телесервису в течение гарантийного срока. По истечении срока гарантии услуги предоставляются по отдельному договору.
Безопасность
- защитные решётки сбоку и сзади;
- разделённый на 3 зоны предохранительный мат, обеспечивающий возможность укладки заготовки в неактивной в данный момент зоне.
Энергоснабжение
Защищает компьютер от повреждений при неполадках в сети, перегрузке или коротком замыкании. При неполадках в сети компьютер контролируемо отключается в течение минуты во избежание потери данных.
Качество
- линейные направляющие в направлении осей Х и Y поставляются с металлической защитной лентой;
- закрытые кабельные каналы по осям X, Y и Z.
Документация
В печатном виде и на компакт-диске, вкл. каталог запчастей и электросхему.
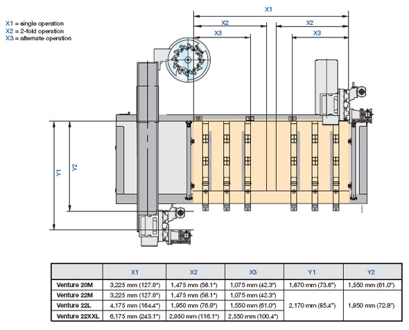
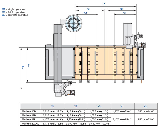
Установочные габариты
Описание основных дополнительных опций:
Устанавливается в главный шпиндель.
- для автоматической замены в главный шпиндель
- для выборки пазов и резания сверху под любым углом к заготовке, а также для прямоугольных вырезов
- торцевание свесов кромочного материала и делительные резы до толщины заготовки макс. 50 мм
- число оборотов макс. 9000 об/мин
- крепежный фланец диаметром 30 мм с 4 болтами с утапливаемой головкой М5
- ТК диаметр 52 мм - LL
- делительная и торцовочная пила диаметром 180 х 30 х 3,2, Z = 54
- толщина пильного диска макс. 10 мм при пазовании
- макс, диаметр пильного диска 200 мм
- с возможностью неограниченного поворота через ось С
Пакет включает:
- Облицовочный агрегат Power Edge:
- для приклеивания кромочного материала {прямоугольное поперечное сечение) на прямых кромках заготовок
- оклеивающая часть для 360-градусного оклеивания встык
- нанесение клея происходит на кромочный материал
- подача полосового материала вручную
- включая емкость для плавления и подачи клея-расплава
- 1 прессующий ролик диам.50 мм для предварительного прессования
- 1 допрессовывающий ролик диам.35 мм
- коротковолновый излучатель для подогрева толстых кромок
- управление процессом - ЧПУ
- включая внешнее место Pickup в качестве парковочной позиции
- внутренний радиус при угле 90 град.: мин.30мм {независимо от кромки)
- внешний радиус в зависимости от гибкости кромочного материала
- диаметр окружности внутреннего контура: мин.400 мм при толщине плиты 19 мм и тонкой кромке
- мин. внутренний контур увеличивается в зависимости от толщины заготовки и кромки
- высота кромки : макс.65 мм (мин.свес кромки на сторону 2 мм)
- толщина кромки при пластике : 0,4 - 3 мм (зависит от материала, напр.ПВХ мин.1 мм) при шпоне : 0,4 - 2 мм
- обработка пластиковых кромок макс: 135мм2, шпона макс: 90мм2
- стык: - прямая доля кромки заготовки: мин.250мм, радиус: мин.ЗООмм
- стык в стык возможен только на плоскости или на кривой, но не на угле
- обслуживание: откидываемая оклеивающая часть для более быстрого и простого сервиса
- при применениии полиолефиновых клеев требуется дополнительный узел расплава
- Узел чернового торцевания и магазин на один рулон:
- для автоматической подачи полос кромок на облицовочный агрегат
- роликовая тарелка монтируется сбоку справа
- диаметр: 600 мм
- длина кромки: мин. 350 мм
- высота кромки: макс. 65 мм
- при применении станции черного фрезерования маятниковая обработка возможна ограниченно.
- Комбинированный агрегат фрезерования/циклевания:
- для автоматической установки в главный шпиндель
- одновременная обработка сверху/снизу
- сторона 1 предназначена для снятия свесов кромки
- сторона 2 - для циклевания кромки после чернового фрезерования
- ощупывание сверху, снизу и сбоку для компенсации допусков заготовки и кромки
- мин. внешний радиус R=5 мм при угле 90° {в зависимости от кромки)
- мин. внутрен. радиус R=30 мм при угле 90° (в зависимости от кромки)
- толщина кромки макс. 4 мм.
- толщина заготовки макс. 60 мм
- мин. свес заготовки ок. 25 мм
- число оборотов макс. 12000 об/мин.
- неограниченный поворот через С-ось, тем самым обеспечивая постоянное давление под прямым углом к заготовке
- без инструмента
- 2 х WPL-радиусная ножевая головка:
- Z=3, вкл. 9 сменных пластин
- толщина кромки макс.радиус + 1 мм
- радиус R= .. мм
- 2 х профильный нож для циклевания:
- радиус R= .. мм
- Концевая фреза с поворотными пластинами Z=2+2, длина режущей части 40 мм.
- Для скругления оклееных поперечных кромок на углах заготовок перед снятием свесов.
- Фреза программируется через подъём по оси Z на левое/правое вращение.
